Szbplans

How Much Does It Cost to Build a 2-Bedroom House in Eswatini (2025)?

How Much Does It Cost to Build a 2-Bedroom House in Eswatini (2025)?

Updated 2025 guide on building costs, size options, cost drivers, and practical tips for a 2-bedroom build in Eswatini.

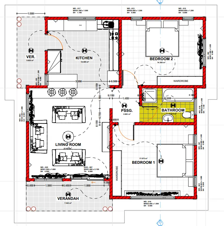
2 bedroom house design

1. Typical Price Range in 2025

A standard two-bedroom home in Eswatini now generally costs between E400,000 and E700,000 to build. This ballpark covers foundations, walls, roofing, electrical and plumbing, internal finishes, labour, and professional fees. The final figure depends heavily on the house size, roof choice, finish level, and where you build.

2. Detailed Cost Categories (Typical Ranges)

CategoryEstimated Cost
Foundation & slabE70,000 – E120,000
Walls & roof (bricks, mortar, trusses, roofing)E120,000 – E200,000
Windows & doorsE20,000 – E45,000
Electrical & plumbingE30,000 – E60,000
Finishes & fittings (tiles, paint, kitchen)E80,000 – E150,000
LabourE100,000 – E180,000
Professional fees (architect, engineer, council)E20,000 – E50,000

Note: These ranges are estimates based on 2025 market checks — exact prices will vary by supplier, region, and specification.

3. Size Options and Typical Pricing

2-Bedroom — 80m² (compact) — approx. E450,000
Open-plan lounge and kitchen, one bathroom, efficient rectangular plan ideal for rentals and small plots.
2-Bedroom — 100m² (standard) — approx. E550,000
En-suite master, added storage, and a larger kitchen for family comfort.
2-Bedroom — 120m² (spacious) — approx. E620,000–E700,000
Larger living spaces, carport option, and higher-spec finishes suited for urban plots.
floor plans 2 bedroom

4. Cost-Saving Strategies

  • Choose a compact rectangular footprint to reduce brickwork and roof complexity.
  • Use local suppliers and standard-size doors and windows to minimise cutting and waste.
  • Opt for simple gable or mono-pitch roofs instead of complex multi-level roofing.
  • Buy bulk materials early and lock in prices where possible.
  • Phase finishes: build with basic fittings and upgrade later as funds allow.
  • Consider semi-detached or row-style builds for rental projects to save on shared walls and roofing.

5. Labour & Contractor Considerations

Labour often accounts for a significant portion of the budget. Contractors quote differently — some use day rates, others a lump sum. Request a detailed bill of quantities and at least two firm quotes. Use a written contract with a clear schedule of works and milestone payments. Verify references and inspect past projects to judge workmanship quality.

6. Permits, Council Fees & Approvals

Plan approval, inspections, and utility connection fees vary by council. Typical additional costs for approvals and connections can range from E10,000 to E30,000 depending on municipality and complexity. Start the permit process early and budget for these fees to avoid delays.

7. Sample SZBPLANS 2-Bedroom Designs

Compact Modern 2-Bed: Simple rectangular plan with efficient kitchen-living area — ideal for rentals or tight sites.

Family Comfort 2-Bed: A 100m² layout with en-suite master, built-in storage, and room for a small study.

Urban Flex 2-Bed: A 120m² layout with carport and semi-open living spaces, suited for urban plots and improved finishes.

8. Estimated Timeline

A typical two-bedroom house can be completed in 3–6 months depending on weather, site preparation, and supply availability. Factor in time for approvals, procurement, and potential delays — keeping some schedule contingency is wise.

9. Practical Material Comparisons

  • Roofing: IBR/Chromadek — low initial cost and fast install; Tiles — higher cost but better insulation and longevity.
  • Walls: Burnt clay bricks — traditional and durable; Concrete blocks — faster build and good thermal mass.
  • Flooring: Ceramic tiles for wet areas; polished screed or affordable vinyl for living spaces.

10. FAQ & Next Steps

Detailed Bill of Quantities Example (brief)

Below is a simplified sample bill of quantities to help you plan. Quantities and unit rates vary, but this illustrates major line items:

  • Concrete (m³) for foundations and slab.
  • Bricks/blocks (units) for wall area.
  • Roofing sheets and trusses for roof area.
  • Doors and windows with frames and hardware.
  • Electrical points and fittings, distribution board.
  • Plumbing fixtures and piping for bathrooms and kitchen.

Always request a line-by-line estimate from your contractor and compare at least two bids.

Financing and Budgeting Tips

If you need financing, local banks and microfinance lenders may offer construction loans. Prepare a clear budget, plans, and two or more contractor quotations for loan applications. Maintain a 10% contingency fund to cover unforeseen items or delays.

Choosing Finishes Wisely

Finishes have a major impact on cost. For lower budgets choose standard ceramic tiles, painted gypsum ceilings, and laminate counters. Mid-range options include better tiles and built-in cupboards. Premium selections such as natural stone and custom cabinetry increase cost substantially — choose finishes that balance aesthetics and value.

Energy and Long-Term Savings

Consider long-term savings when selecting materials. Good roof insulation, energy-efficient windows, and water-saving fixtures reduce running costs. Solar water heaters are a cost-effective investment in many parts of Eswatini and can be added later if the initial budget is tight.

Additional FAQs

Q: Can SZBPLANS adapt a 2-bedroom plan to my plot size?
A: Yes. We provide modification services to adapt layouts to plot dimensions, council rules, and orientation. Send your plot measurements for a quote.

Q: Are permit and council fees included in estimates?
A: Not always. Include plan submission, inspection, and utility connection fees separately when budgeting.

Q: How to manage rising material prices mid-build?
A: Lock-in prices with suppliers, buy bulk early, and maintain contingency funds. Discuss staged purchasing with your contractor.

Final Steps and How SZBPLANS Helps

Collect site dimensions, topography photos, preferred finishes, and a rough budget. Send these details to SZBPLANS and we will prepare a tailored cost projection and recommend plans suited to your needs. Our team can also connect you with vetted local contractors to support a smooth.

Leave a Reply

Your email address will not be published. Required fields are marked *

Scroll to Top